Zum Hauptinhalt springen Zur Suche springen Zur Hauptnavigation springen
Menü
Beschreibung

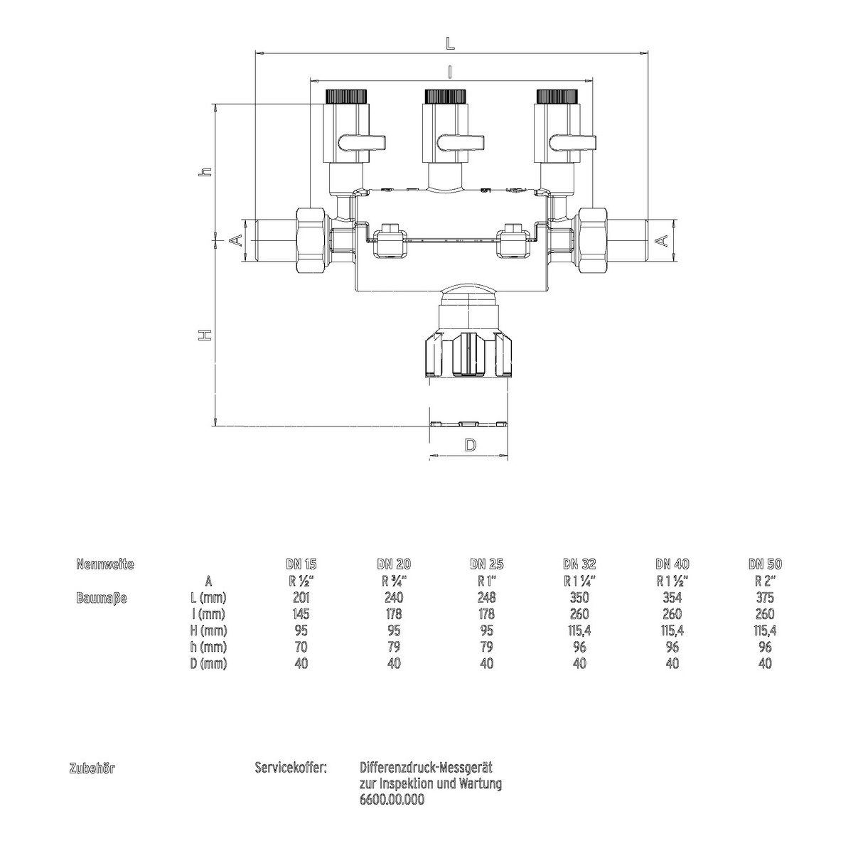
SYR Systemtrenner BA 6610 In-line LF, DN 32, R 1 1/4, bleifreies Gehäuse

Der Systemtrenner BA 6610 In-line ist eine kompakte Sicherungsarmatur entsprechend DIN EN 1717, Gruppe B, mit kontrollierter Trennung (Dreikammersystem). Er entspricht der dort definierten Einbauart BA und kann demnach zur Absicherung bis einschließlich Flüssigkeitskategorie 4 verwendet werden.

Seine Aufgabe ist es, ein Rücksaugen oder Rückfließen von Nichttrinkwasser in das öffentliche Trinkwassernetz zu verhindern. Der Systemtrenner BA deckt eine Vielzahl von Anwendungsmöglichkeiten ab (z. B. Druckereien, Chemie- und Lebensmittelbetriebe, Labor- und Medizintechnik).

Der Systemtrenner BA 6610 beinhaltet alle entsprechend DIN EN 1717 festgelegten Bestandteile und ist als 3-Kammer-System mit kontrollierbarer Vordruck-, Mitteldruck- und Hinterdruckzone ausgeführt. Zusätzlich ist er mit einem integrierten Schmutzfänger ausgerüstet. Jede Druckzone ist mit Kugelhähnen versehen und ermöglicht so eine Kontrolle der Sicherungseinrichtungen durch Druckmessung. Der Systemtrenner besteht aus 2 hintereinander geschalteten Rückflussverhinderern (RV), die mit einer belüftbaren Mittelzone ausgestattet sind.

Erfolgt keine Wasserentnahme, sind der ein- und ausgangsseitige RV, sowie das Ablassventil geschlossen. Bei Rücksaugung fällt der eingangsseitige Druck ab. Das Ablassventil öffnet spätestens, wenn der Differenzdruck zwischen Vor- und Mitteldruckkammer auf 0,14 bar abgesunken ist.

Technische Daten:

  • Betriebsdruck: max. 10 bar
  • Betriebstemperatur: max. 65 °C
  • Einbaulage: waagerecht, Trichteranschluss nach unten
  • Medium: Trinkwasser
  • Durchflussleistung: 13,0 m³/h bei Delta p 1,5 bar
  • Anschlussgröße: DN 32

 

Eigenschaften
Serie: BA6610
Abmessung (Zoll): 1 1/4"
Material: Messing bleifrei
Sicherheitshinweise

Sicherheitshinweise

Bitte beachten Sie die folgenden Hinweise zur sicheren Nutzung der angebotenen Produkte.
Sie dienen der Vermeidung von Gefahren, Verletzungen sowie Sach- und Folgeschäden.

Die Nutzung darf ausschließlich bestimmungsgemäß und unter Beachtung aller mitgelieferten Produktinformationen erfolgen. Montage, Installation und Wartung dürfen – sofern erforderlich – nur durch qualifiziertes Fachpersonal durchgeführt werden.

Bewahren Sie alle sicherheitsrelevanten Informationen dauerhaft auf und geben Sie diese bei Weitergabe des Produkts an Dritte mit.

Entwässerungs- und Abwassersysteme

Entwässerungssysteme müssen fachgerecht installiert werden, um einen sicheren Abfluss von Abwasser zu gewährleisten.

Alle Verbindungen sind dicht auszuführen. Undichtigkeiten können zu erheblichen Gebäudeschäden führen.

Es ist auf mögliche Rückstauereignisse zu achten. Gegebenenfalls sind geeignete Rückstausicherungen zu installieren.

Zur Beseitigung von Verstopfungen dürfen keine ungeeigneten oder aggressiven chemischen Mittel verwendet werden, da diese Materialien angreifen können.

Regelmäßige Wartung und Kontrolle sind erforderlich, um Funktionsstörungen und Schäden zu vermeiden.

Elektrische Komponenten und Systeme

Arbeiten an elektrischen Anlagen dürfen ausschließlich durch qualifizierte Elektrofachkräfte durchgeführt werden.

Vor Beginn von Arbeiten ist die Stromversorgung vollständig zu unterbrechen und gegen Wiedereinschalten zu sichern.

Elektrische Komponenten dürfen nicht mit Wasser oder Feuchtigkeit in Kontakt kommen, sofern sie nicht ausdrücklich dafür ausgelegt sind.

Beschädigte Kabel, Steckverbindungen oder Geräte dürfen nicht verwendet werden, da die Gefahr von Stromschlag oder Brand besteht.

Schwere und sperrige Produkte

Beim Transport und bei der Montage schwerer oder sperriger Produkte besteht eine erhöhte Verletzungsgefahr.

Der Transport sollte nach Möglichkeit durch mehrere Personen oder mit geeigneten Hilfsmitteln erfolgen.

Bei der Montage ist auf eine sichere Befestigung sowie auf die Tragfähigkeit von Wänden und Untergründen zu achten.

Unsachgemäße Handhabung kann zu Quetschungen, Stürzen oder Materialschäden führen.

Zusätzliche Hinweise

Die produktspezifischen Montageanleitungen, technischen Angaben und Sicherheitshinweise der jeweiligen Hersteller sind stets zu beachten und haben Vorrang.

Sicherheitshinweise

Sicherheitshinweise

Bitte beachten Sie die folgenden Hinweise zur sicheren Nutzung der angebotenen Produkte.
Sie dienen der Vermeidung von Gefahren, Verletzungen sowie Sach- und Folgeschäden.

Die Nutzung darf ausschließlich bestimmungsgemäß und unter Beachtung aller mitgelieferten Produktinformationen erfolgen. Montage, Installation und Wartung dürfen – sofern erforderlich – nur durch qualifiziertes Fachpersonal durchgeführt werden.

Bewahren Sie alle sicherheitsrelevanten Informationen dauerhaft auf und geben Sie diese bei Weitergabe des Produkts an Dritte mit.

Entwässerungs- und Abwassersysteme

Entwässerungssysteme müssen fachgerecht installiert werden, um einen sicheren Abfluss von Abwasser zu gewährleisten.

Alle Verbindungen sind dicht auszuführen. Undichtigkeiten können zu erheblichen Gebäudeschäden führen.

Es ist auf mögliche Rückstauereignisse zu achten. Gegebenenfalls sind geeignete Rückstausicherungen zu installieren.

Zur Beseitigung von Verstopfungen dürfen keine ungeeigneten oder aggressiven chemischen Mittel verwendet werden, da diese Materialien angreifen können.

Regelmäßige Wartung und Kontrolle sind erforderlich, um Funktionsstörungen und Schäden zu vermeiden.

Elektrische Komponenten und Systeme

Arbeiten an elektrischen Anlagen dürfen ausschließlich durch qualifizierte Elektrofachkräfte durchgeführt werden.

Vor Beginn von Arbeiten ist die Stromversorgung vollständig zu unterbrechen und gegen Wiedereinschalten zu sichern.

Elektrische Komponenten dürfen nicht mit Wasser oder Feuchtigkeit in Kontakt kommen, sofern sie nicht ausdrücklich dafür ausgelegt sind.

Beschädigte Kabel, Steckverbindungen oder Geräte dürfen nicht verwendet werden, da die Gefahr von Stromschlag oder Brand besteht.

Schwere und sperrige Produkte

Beim Transport und bei der Montage schwerer oder sperriger Produkte besteht eine erhöhte Verletzungsgefahr.

Der Transport sollte nach Möglichkeit durch mehrere Personen oder mit geeigneten Hilfsmitteln erfolgen.

Bei der Montage ist auf eine sichere Befestigung sowie auf die Tragfähigkeit von Wänden und Untergründen zu achten.

Unsachgemäße Handhabung kann zu Quetschungen, Stürzen oder Materialschäden führen.

Zusätzliche Hinweise

Die produktspezifischen Montageanleitungen, technischen Angaben und Sicherheitshinweise der jeweiligen Hersteller sind stets zu beachten und haben Vorrang.

Produktsicherheit

Hersteller
Hans Sasserath GmbH & Co. KG

Adresse
Mühlenstrasse 62
41352 Korschenbroich
Deutschland

E-Mail
sasserath@syr.de

Produktgalerie überspringen

Modellreihe

SYR Systemtrenner BA 6610 In-line LF, DN 40, R 1 1/2, bleifreies Gehäuse
Art.-Nr. 661040000
SYR Systemtrenner BA 6610 In-line LF, DN 40, R 1 1/2, bleifreies Gehäuse

Auf Lager
Lieferzeit: 3-5 Werktage

Regulärer Preis: 592,00 €
SYR Systemtrenner BA 6610 In-line LF, DN 15, R 1/2, bleifreies Gehäuse
Art.-Nr. 661015000
SYR Systemtrenner BA 6610 In-line LF, DN 15, R 1/2, bleifreies Gehäuse

Auf Lager
Lieferzeit: 3-5 Werktage

Regulärer Preis: 278,90 €
SYR Systemtrenner BA 6610 In-line LF, DN 20, R 3/4, bleifreies Gehäuse
Art.-Nr. 661020000
SYR Systemtrenner BA 6610 In-line LF, DN 20, R 3/4, bleifreies Gehäuse

Auf Lager
Lieferzeit: 3-5 Werktage

Regulärer Preis: 303,90 €
SYR Systemtrenner BA 6610 In-line LF, DN 25, R 1, bleifreies Gehäuse
Art.-Nr. 661025000
SYR Systemtrenner BA 6610 In-line LF, DN 25, R 1, bleifreies Gehäuse

Auf Lager
Lieferzeit: 3-5 Werktage

Regulärer Preis: 328,90 €
SYR Systemtrenner BA 6610 In-line LF, DN 50, R 2, bleifreies Gehäuse
Art.-Nr. 661050000
SYR Systemtrenner BA 6610 In-line LF, DN 50, R 2, bleifreies Gehäuse

Auf Lager
Lieferzeit: 3-5 Werktage

Regulärer Preis: 653,00 €
Produktgalerie überspringen

Kunden haben sich ebenfalls angesehen

SYR Systemtrenner BA 6610 In-line LF, DN 20, R 3/4, bleifreies Gehäuse
Art.-Nr. 661020000
SYR Systemtrenner BA 6610 In-line LF, DN 20, R 3/4, bleifreies Gehäuse

Auf Lager
Lieferzeit: 3-5 Werktage

Regulärer Preis: 303,90 €
SYR Systemtrenner BA 6610 In-line LF, DN 15, R 1/2, bleifreies Gehäuse
Art.-Nr. 661015000
SYR Systemtrenner BA 6610 In-line LF, DN 15, R 1/2, bleifreies Gehäuse

Auf Lager
Lieferzeit: 3-5 Werktage

Regulärer Preis: 278,90 €
SYR Systemtrenner BA 6610 In-line LF, DN 25, R 1, bleifreies Gehäuse
Art.-Nr. 661025000
SYR Systemtrenner BA 6610 In-line LF, DN 25, R 1, bleifreies Gehäuse

Auf Lager
Lieferzeit: 3-5 Werktage

Regulärer Preis: 328,90 €
Viega Muffe 1'' Modell 3270 aus Rotguss
Art.-Nr. 266561
Viega Muffe 1'' Modell 3270 aus Rotguss

Auf Lager
Lieferzeit: 3-5 Werktage

Regulärer Preis: 6,60 €
SYR Systemtrenner BA 6610 In-line LF, DN 40, R 1 1/2, bleifreies Gehäuse
Art.-Nr. 661040000
SYR Systemtrenner BA 6610 In-line LF, DN 40, R 1 1/2, bleifreies Gehäuse

Auf Lager
Lieferzeit: 3-5 Werktage

Regulärer Preis: 592,00 €
SYR Systemtrenner BA 6610 In-line LF, DN 50, R 2, bleifreies Gehäuse
Art.-Nr. 661050000
SYR Systemtrenner BA 6610 In-line LF, DN 50, R 2, bleifreies Gehäuse

Auf Lager
Lieferzeit: 3-5 Werktage

Regulärer Preis: 653,00 €